Close

Product Center

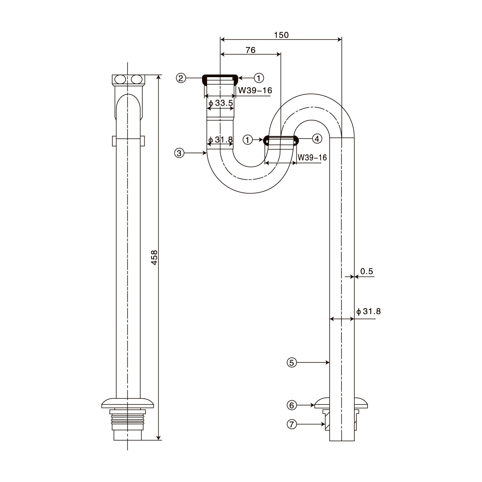
Korean style S-shaped bend

Model:8805

8805.jpg